
When your tank is located far from centralized steam or hot oil systems, running pipe, insulation, and infrastructure can get expensive—fast. That’s where this electric tank heater system shines. Designed for small-scale heating needs in remote or stand-alone tanks, this package offers a plug-and-play solution that mounts directly to the manway.Perfect for applications requiring 100,000–200,000 Btu/hr, this system is ideal for tanks storing materials at lower temperatures—like biodiesel tanks needing consistent 80°F heating.

Note: Not recommended for tanks that require 1–2MM Btu/hr. This is a compact, efficient option for small or supplemental heating.
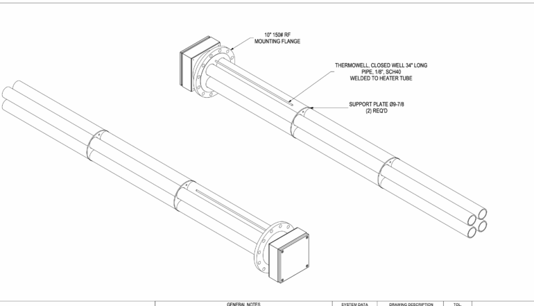
Reference Drawing: 16-010968-1A-MA01
Reference Drawing: 18-11942-1A-M.idw
This system is a game-changer for locations where electrical access is easier than running a full thermal loop. If your application needs modest heat and fast install, this package delivers.
Contact us for pricing, sizing support, or help determining if this setup fits your tank configuration.